地址:台南市東區崇德一街72號6F
電話:06-2602776
Instagram:www.instagram.com/artru.design/
Facebook:https://www.facebook.com/ARTRUDESIGN
哥哥的新家,是那種一踏進去,就會忍不住慢下來的空間。 木質、光影、線條,把日常變得更柔軟。 亞筑設計把收納藏得剛剛好,視覺乾淨,心也跟著安定。 最喜歡玄關那顆大方塊,把衣帽間與客浴隱形起來, 像是替生活做了一點小魔術。 房間的色彩也都是每個人喜歡的溫度, 住在裡面,好像每天都能 reset 情緒。 家變得美好後,人也變得輕鬆了。 原來喜歡的生活,是可以自己慢慢打造的。
台南室內設計夢幻團隊亞筑!50坪現代質感宅,隱藏機能無敵



我哥就是那種看上眼就一定要的個性!有錢就是任性!
之前跟著他去看實品屋,他被設計迷到不行,根本不用等到銷售介紹完,二話不說直接買下同戶型,直接請設計師照著樣品屋做,幾乎是99%照著樣品屋重現,只有幾個小地方稍微調整,真的行動派到不行~
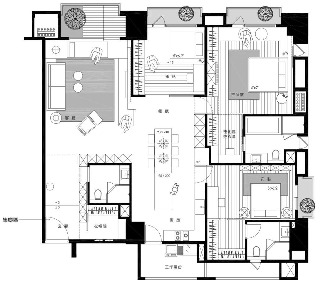
實品屋室內大約50坪,設計範圍是42坪(扣掉廁所)。

負責設計的是台南的亞筑設計,主軸是「空間整合+隱藏機能」,就是把家裡所有的收納都藏得超好,讓視覺上看起來超乾淨俐落!








整個家的風格走的是現代質感路線,配色以木頭為基底,搭配黑白灰這些經典色調。我覺得最厲害的是,它看起來很沉穩大氣,但完全不會有那種冰冷或疏離的感覺,反而很有溫度,就是那種會讓人想回家的感覺~~

▼亞筑設計師真的懂怎麼讓空間說話!光影、線條、材質都拿捏得剛剛好,收納機能都藏得很巧妙,完全不會看到雜亂的東西,讓整個家呈現出一種安靜、沉穩的力量感。


▼一進門右手邊,設計師做了一個超酷的設計!把客用廁所跟衣帽間整個藏進一個完整的「大方塊」裡,收納跟展示功能都有了,而且兩個門的出入口都巧妙藏起來,完全看不出破綻。這樣一來,客廳公共區域的視覺就超級乾淨,走動起來也完全不會卡卡的,動線超順!


▼客廳、餐廳跟廚房是連在一起的開放式設計,視覺上完全沒有阻礙,但功能上又不會互相干擾。


▼這樣一家人在裡面,全家人可以各做各的事,但又很有家的互動感,吃飯、聊天都自然而然發生。



▼很喜歡紅酒架!與中島融為一體~

▼主臥室走的是溫柔高雅路線,用白色烤漆木皮搭配溫潤的木頭色調,再放一些深色系的抱枕、窗簾做點綴。整個空間看起來既溫暖又有質感,是那種會讓人一躺下就完全放鬆的氛圍。

▼床頭後面的窗戶設計我覺得超貼心!設計師做了拉門處理,晚上睡覺可以把拉門關起來,會有比較安定的感覺,不會一直意識到後面有窗戶。白天的時候又可以打開讓自然光灑進來,調節光線層次,真的很實用!



▼次臥我哥他超愛這間!用黑色木皮配白色木皮,牆面是伯爵灰,整個氣場超強,很有企業家的尊榮感哈哈~床跟書桌都選用厚實的實木,質感真的沒話說,穩重大器,一看就知道是有品味的人住的房間!

▼小孩房的設計比較靈活多變,延續木質的溫暖調性,但加入了美式休閒風格的元素,感覺比較輕鬆活潑。最厲害的是那兩片超大的拉門設計,可以把空間彈性轉換成書房或客房使用,未來小孩長大搬出去了,這間房也能有其他用途,完全不浪費!


整體調性一樣是以木頭為主,不過我哥家用了更多的灰白木皮,讓整個空間看起來更輕盈一點,不會太沉重。這樣的配色讓櫃體的存在感降低了,視覺上更舒服!


▼客廳跟廚房之間多加了一道玻璃大滑門,這個我覺得超實用!平常可以完全打開,保持開放式的通透感,但如果真的在煮比較容易有油煙的料理時,就可以把門關起來做區隔,兼顧了大氣跟實用性,真的很聰明!



▼兩片大拉門的設計,打開可以把整個空間連接在一起!

▼臥室牆面用了大家各自喜歡的顏色,更有自己的個性~

看完我哥家的成品,我真心覺得他這次買對了!
照著實品屋重現這個決定完全不踩雷,甚至實際住起來比想像中還要更有質感。
有設計感、有生活感,而且收納空間多到驚人,家裡乾乾淨淨、沒有多餘東西在外面,看久也不膩,我哥說越住越喜歡!
亞筑設計師在細節上的用心真的看得出來,不管是收納的隱藏、動線的規劃、光線的處理,每一個地方都讓人感受到專業。而且最重要的是,這個家不是只有好看而已,實際住起來的舒適度跟機能性都超棒!
如果你們也在找設計師,或是不知道自己想要什麼風格,我覺得實品屋真的是個很好的參考!看到喜歡的就直接照著做,比起從零開始溝通,真的省事很多,而且效果也有保證~完全是那種住越久越喜歡的家。
地址:台南市東區崇德一街72號6F
電話:06-2602776
Instagram:www.instagram.com/artru.design/
Facebook:https://www.facebook.com/ARTRUDESIGN
艾薇到處走 體驗分享:(06) 2133-729
© Copyright 2021 艾薇到處走. / Website Designed By 作愚行網站設計